BMSS NICKELMYNTSGATAN
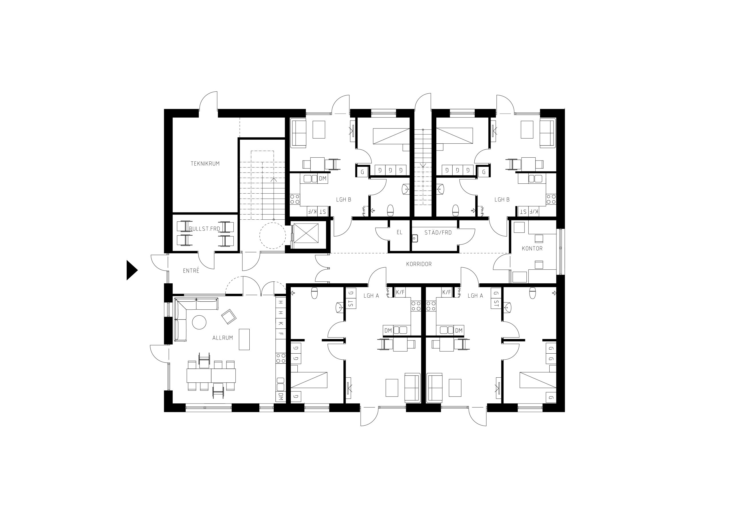
Nickelmyntsgatan är en bostad med särskild service anpassad för 8 äldre brukare. Byggnaden är placerad på en kuperad tomt och består av två våningar med fyra lägenheter på varje våningsplan.
På entréplan finns ett stort gemensamt vardagsrum, fotvård och kontor och på övre plan finns ett gemensamt TV-rum, en härlig balkong och sinnesrum. Här ligger också personalens utrymmen. Målbilden har varit att skapa ett härligt hem åt de äldre och att undvika känslan av institution. Utemiljön innehåller vattenspegel, motionsslinga och utegym samt en pergola med utsikt.
Byggnaden uppförs i KLT, massivträstomme och vi har strävat efter att visa mycket trä interiört för att utnyttja materialets värme och goda akustikegenskaper. I projektet har vi förutom att ansvara för arkitektur och gestaltning varit en sammankallande och projekteringsledande roll där vi haft uppgiften att driva projekteringen framåt och planera alla konsulters möten.
har tillsammans med projektledarna hållit i arbetsmöten och planering.
Byggnadens exteriör består av en hög träsockelvåning och ett ovanför det ett tåligt ljust skivmaterial som monteras i ett diagonalt mönster.
Typ: Service och gruppbostäder
Färdigställt: Pågående
Beställare: Göteborg Stad/Lokalförvaltningen
Ort: Göteborg
LOA: ca 820 kvm

BMSS NICKELMYNTSGATAN
Nickelmyntsgatan är en bostad med särskild service anpassad för 8 äldre brukare. Byggnaden är placerad på en kuperad tomt och består av två våningar med fyra lägenheter på varje våningsplan.
På entréplan finns ett stort gemensamt vardagsrum, fotvård och kontor och på övre plan finns ett gemensamt TV-rum, en härlig balkong och sinnesrum. Här ligger också personalens utrymmen. Målbilden har varit att skapa ett härligt hem åt de äldre och att undvika känslan av institution. Utemiljön innehåller vattenspegel, motionsslinga och utegym samt en pergola med utsikt.
Byggnaden uppförs i KLT, massivträstomme och vi har strävat efter att visa mycket trä interiört för att utnyttja materialets värme och goda akustikegenskaper. I projektet har vi förutom att ansvara för arkitektur och gestaltning varit en sammankallande och projekteringsledande roll där vi haft uppgiften att driva projekteringen framåt och planera alla konsulters möten.
har tillsammans med projektledarna hållit i arbetsmöten och planering.
Byggnadens exteriör består av en hög träsockelvåning och ett ovanför det ett tåligt ljust skivmaterial som monteras i ett diagonalt mönster.
Typ: Service och gruppbostäder
Färdigställt: Pågående
Beställare: Göteborg Stad/Lokalförvaltningen
Ort: Göteborg
LOA: ca 820 kvm






