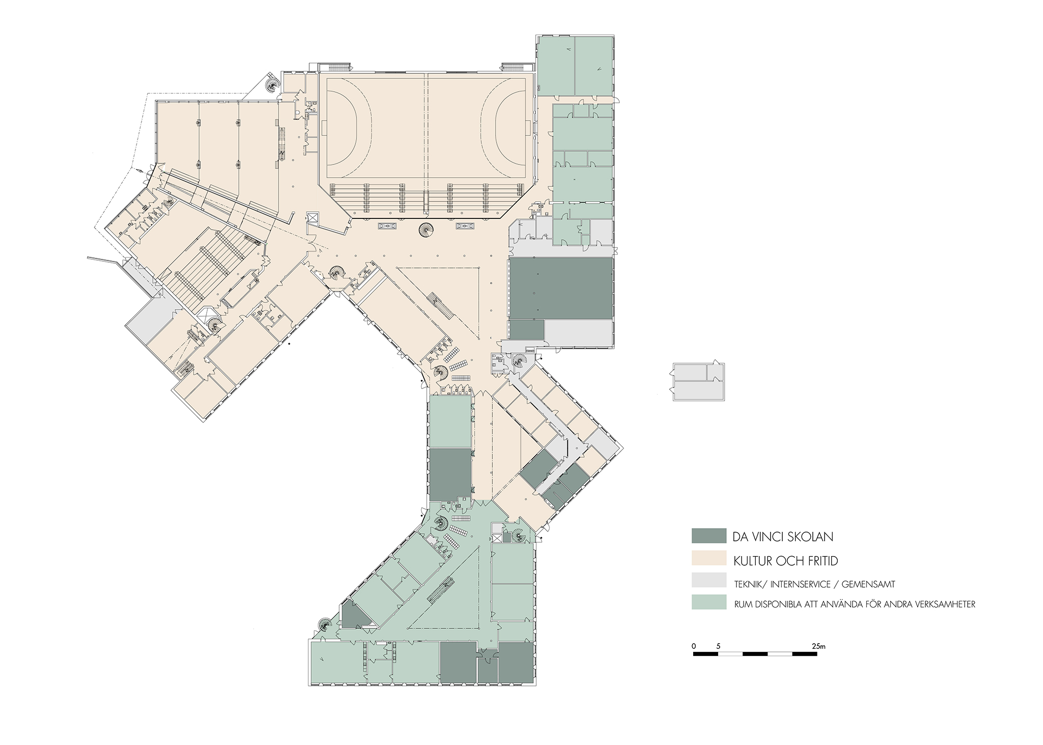
ALE KULTURRUM OCH DA VINCI SKOLA
Projektet Ale Kulturrum och Da Vinciskolan är ett ombyggnadsprojekt där en skola genomgår omvandling från gymnasieskola till högstadieskola och kulturlokaler moderniseras för att möta behoven av en förändrad verksamhet.
Kaka Arkitekter har genom hela projektet, från programstudie till bygghandling, arbetat med de komplexa samband och utmaningar som en multifunktionell kultur- och undervisningsbyggnad innebär i form av bland annat lokaleffektivitet, lokalanpassning, säkerhet samt flexibilitet och tagit fram en lösning där skola och kulturliv kan samverka och samutnyttja lokaler i en befintlig byggnad.
Projektet innehåller ombyggnad om modernisering av undervisningslokaler som stöd för högstadieskolans pedagogik och när ombyggnationen är färdig finns här uppfräschade klass- och grupprum samt nya specialsalar för musik-, NO-, slöjd- och hemkunskapsundervisning. Målet är att de nya lokalerna ska utgöra ett stödjande och inspirerande element i undervisningen där elever och personal trivs och mår bra.
I ombyggnationen tillförs även nya lokaler för kultur- och föreningsliv, med bland annat Kreativ verkstad, Blackbox, föreningscafé och ungdomsverksamhet.
Typ: Ombyggnation skola och kulturrum
Färdigställt: 2020
Beställare: Byggdialog/Ale Kommun
Ort: Ale
BTA: ca 15 000 kvm

ALE KULTURRUM OCH DA VINCI SKOLA
Projektet Ale Kulturrum och Da Vinciskolan är ett ombyggnadsprojekt där en skola genomgår omvandling från gymnasieskola till högstadieskola och kulturlokaler moderniseras för att möta behoven av en förändrad verksamhet.
Kaka Arkitekter har genom hela projektet, från programstudie till bygghandling, arbetat med de komplexa samband och utmaningar som en multifunktionell kultur- och undervisningsbyggnad innebär i form av bland annat lokaleffektivitet, lokalanpassning, säkerhet samt flexibilitet och tagit fram en lösning där skola och kulturliv kan samverka och samutnyttja lokaler i en befintlig byggnad.
Projektet innehåller ombyggnad om modernisering av undervisningslokaler som stöd för högstadieskolans pedagogik och när ombyggnationen är färdig finns här uppfräschade klass- och grupprum samt nya specialsalar för musik-, NO-, slöjd- och hemkunskapsundervisning. Målet är att de nya lokalerna ska utgöra ett stödjande och inspirerande element i undervisningen där elever och personal trivs och mår bra.
I ombyggnationen tillförs även nya lokaler för kultur- och föreningsliv, med bland annat Kreativ verkstad, Blackbox, föreningscafé och ungdomsverksamhet.
Typ: Ombyggnation skola och kulturrum
Färdigställt: 2020
Beställare: Byggdialog/Ale Kommun
Ort: Ale
BTA: ca 15 000 kvm







